Bienestar social
El PSOE de Ibiza carga contra el PP por renunciar a la herencia de Villa Otilia para una residencia de mayores en Sant Josep
Los socialistas señalan que se trata de “una operación diseñada para favorecer intereses privados"

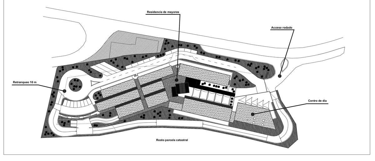
Anteproyecto presentado por el PSOE para una residencia en Sant Josep / PSOE
El PSOE en el Consell de Ibiza y en el Ayuntamiento de Sant Josep ha estallado este lunes contra el Partido Popular por lo que considera una decisión “sin precedentes” en la isla: renunciar a la finca de Villa Otilia, un terreno de 73.303 metros cuadrados valorado en más de 800.000 euros que, según explican los socialistas, el matrimonio formado por Josep Tur ‘Coques’ y Otilia Torres legó con una condición muy concreta: levantar allí una residencia para personas mayores y dependientes.
Para el PSOE, la maniobra es una “vergonzosa traición al pueblo de Sant Josep" y también a la memoria de los donantes. En un comunicado, los socialistas señalan directamente al presidente del Consell, Vicent Marí, y al alcalde, Vicent Roig, por haber “renunciado” a un patrimonio que califican de “importante” y “absolutamente necesario” para el interés público.
La crítica no se queda en el gesto político. El PSOE sostiene que la renuncia no se explica por obstáculos inevitables, y rechaza que sea un problema técnico insalvable. Al contrario: asegura que no es fruto de “la casualidad” ni “de impedimentos técnicos insuperables”, y que responde a “una operación diseñada para favorecer intereses privados en detrimento del bienestar público”. Dicho de otro modo: los socialistas sugieren que, detrás de la marcha atrás, hay algo más que un simple expediente.
"Una auténtica bofetada"
El PSOE considera “especialmente inaceptable” que el PP se escude ahora en que el suelo es rústico para dar el proyecto por inviable, y recuerda que la institución puede tramitar declaraciones de interés general para infraestructuras de uso comunitario, “tal como se ha hecho históricamente con escuelas e institutos". Para los socialistas, esa falta de voluntad política es “una auténtica bofetada” a las necesidades sociosanitarias del municipio.
Además, el PSOE denuncia “opacidad” en la gestión y dice sospechar que el Consell y el Ayuntamiento han ejecutado una renuncia deliberada. La nota recuerda que el testamento fijaba un plazo de cinco años para iniciar la construcción de la residencia desde la aceptación de la herencia. Según el PSOE, al abandonar ese derecho el PP ha permitido que la propiedad pase a una fundación privada que “ya la ha puesto a la venta" en el mercado inmobiliario, abriendo la puerta a que un espacio pensado para fines sociales acabe convertido en un activo privado.
Ante este escenario, los socialistas anuncian que pedirán “de manera immediata” acceso a todos los escritos y notificaciones oficiales con los que se haya comunicado formalmente la renuncia. Exigen “transparencia total” sobre cuándo se tomó la decisión y qué argumentos legales se emplearon. Y avisan de que no se quedarán callados ante lo que ven como una decisión “indignante” que, según su versión, beneficia intereses inmobiliarios mientras deja a Sant Josep sin un centro de día y residencia “vitales” para el futuro de sus mayores.
Suscríbete para seguir leyendo
- Atención, conductores de Ibiza: estas son las carreteras cortadas este sábado por el Santa Eulària Ibiza Marathon
- Muere un hombre en Ibiza al volcar el tractor que conducía
- La Feria Andaluza de Ibiza arranca con el rebujito como uno de sus principales reclamos
- Alarma por un incendio en una vivienda abandonada y okupada en el centro de Ibiza
- Cinco años de la gran apuesta por la sobrasada de 'porc negre' y la ganadería de Ibiza
- Tellado pide en Ibiza la dimisión de Armengol: «Es la gran conseguidora de la trama Koldo»
- Un incendio agrícola en Ibiza moviliza medios aéreos y terrestres del Ibanat
- Björn Borg, leyenda del tenis, firmará su autobiografía, 'Latidos', el día de Sant Jordi en Ibiza: «Si no hubiera vuelto al tenis, probablemente estaría muerto»