Sant Josep proyecta que el nuevo cuartel de la Guardia Civil se edifique en Can Burgos
Con las nuevas normas urbanísticas provisionales, que se aprobarán en breve, también se obtiene suelo para un centro educativo en Cala de Bou y la ampliación del de Sant Jordi

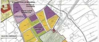
Arriba, junto a la rotonda de Mercadona, el terreno que se reserva para el nuevo cuartel de la Guardia Civil. | D. I. / di
El Ayuntamiento de Sant Josep prevé que el nuevo cuartel de la Guardia Civil se construya en el antiguo sector de suelo urbanizable 1.11 de Can Burgos, junto a la rotonda de la carretera de Sant Josep, en el tramo de Can Bellotera, frente al Mercadona, a poco más de un kilómetro de distancia del cuartel de Can Sifre. Para ello, el Consistorio obtendrá un terreno de 14.882 metros cuadrados, colindante con la carretera de Sant Josep y la calle del Campanar, a cambio de mantener el antiguo suelo urbanizable 1.11 de Can Burgos, de seis hectáreas de superficie.
La propiedad no ha iniciado la ejecución material de la nueva urbanización (no cuenta con Plan Parcial aprobado) pero el Consistorio admite que en parte es culpa suya porque este sector quedó paralizado a expensas de que Sant Josep adaptara su plan urbanístico al Plan Territorial Insular (PTI), de 2005, lo que no ha hecho.
Esta es una de las actuaciones previstas en las nuevas normas urbanísticas provisionales que próximamente aprobará el Consell de Ibiza en consenso con el Ayuntamiento para regular el urbanismo del municipio transitoriamente mientras se redacta un Plan General de Ordenación Urbana (PGOU).

El terreno, entre las calles Jaén y Orense, que se obtiene con las nuevas normas para un centro educativo en Cala de Bou. | D. I.
De hecho, el lunes se celebrará un pleno extraordinario en Sant Josep para solicitar ya al Consell la suspensión del planeamiento urbanístico en vigor (las Normas Subsidiarias de 1986) y remitirle la propuesta de las normas provisionales acordadas entre las dos instituciones para su aprobación inicial. El Consell es el que tiene la facultad de suspender el planeamiento de un municipio y aprobar unas normas provisionales, como ya hizo en su día con Santa Eulària. Estas nuevas normas afectan sólo al suelo urbano o urbanizable.

El vial proyectado que atraviesa los terrenos de Matutes en Platja d'en Bossa. | D. I.
Las Normas Subsidiarias (NNSS) en vigor proyectaban 80 áreas de actuación en el municipio, pero desde 1986 sólo cinco o seis se han tramitado correctamente. El resto se han desarrollado de manera parcial, lo que provoca, según reconoce el equipo de gobierno en la propuesta que elevará al pleno, que la gestión urbanística resulte «imposible» porque «no queda claro quién se tiene que hacer cargo y completar la urbanización».
Como en su día las diversas zonas de suelo urbano se seccionaron «sin ningún tipo de criterio urbanístico», tampoco hubo, ni se exigió por parte del Ayuntamiento, las correspondientes cesiones de suelo para equipamientos públicos, aparcamientos, zonas verdes, entre otros servicios. Esta situación, además de dejar sin terrenos al Consistorio para construir viviendas sociales o centros deportivos, entre otros, también genera, por ejemplo, que en el municipio haya calles sin salida.

Los terrenos donde se proyecta el nuevo cuartel de la Guardia Civil | D. I. / eugenio rodríguez. eivissa
Licencias sin tramitación previa
Históricamente, el Consistorio otorgó licencias para construir en suelo urbanizable sin haberse aprobado antes los instrumentos de ordenación que marca la ley. Así, en terrenos urbanizables no desarrollados se encuentran edificios y ahora resulta «inviable la urbanización y obtención de suelo público». Esto ha originado situaciones de «desigualdad manifiesta» en la aplicación posterior de lo que marca la normativa, ya que algunos propietarios han podido edificar y otros no.
Este «lío normativo», señala la propuesta del equipo de gobierno, ha generado «un caos urbanístico y jurídico» que deriva en «la imposibilidad de poder continuar con la gestión de las actuales normas urbanísticas» porque, agrega, se ha alcanzado «un punto de no retorno». Por ello, la única salida es suspender las NNSS en vigor y aprobar las normas provisionales.
Informes de suficiencia hídrica
Con la nueva normativa se delimitarán nuevas áreas de actuación para permitir «una cierta actividad urbanística de baja intensidad» y garantizar «la pervivencia» de sectores mal gestionados así como resolver con ello de manera inmediata ciertas deficiencias, como las calles sin salida. No se altera el suelo urbano (no aumenta) para no afectar al futuro PGOU.
El desarrollo de algunos suelos se hará mediante planes especiales cuya ordenación quedará supeditada a la emisión de informes sobre la suficiencia de agua. Además, en las nuevas unidades de actuación, el porcentaje de cesión de terreno al Ayuntamiento se sitúa en el 50% de superficie bruta.
En cuanto a los suelos urbanizables, las normas sólo prevén la desclasificación del sector 1.1 Cas Damians. Los urbanizables se dividen en aquellos que tienen Plan Parcial aprobado y los que no. En el caso de los primeros, las normas provisionales incorporan su ordenación detallada.
Como se ha apuntado, las nuevas normas urbanísticas tienen la finalidad de obtener terrenos para equipamientos públicos, cuya implantación es «urgente y no puede demorarse» hasta la aprobación del PGOU. Es el caso del terreno para el cuartel de la Guardia Civil. También se reserva una superficie de 28.248 metros cuadrados en Cala de Bou, entre la avenida de Sant Agustí y las calles Orense y Jaén, para un equipamiento educativo y cultural.
Del mismo modo, se prevé un terreno en forma de ‘L’ de casi 14.000 metros cuadrados, colindante con el colegio de Sant Jordi, justo después de las pistas deportivas, para su ampliación.
También se prevé una superficie de casi nueve hectáreas en el polígono de Sant Jordi, a la altura de la última glorieta de acceso al aeropuerto, para construir naves. Esta reserva se incluye por la carencia de suelo industrial en la isla.
Asimismo, tal como ya adelantó este diario, se incorpora un nuevo vial que atraviesa los terrenos del Grupo de Empresas Matutes en Platja d’en Bossa y conecta con las calles Gamba Roja, de la Murtra y con la autovía, para descongestionar el tráfico de esta zona turística.
El techo de población se reduce a 45.609 habitantes
Las normas urbanísticas provisionales de Sant Josep que el Consell aprobará en breve reducen la capacidad potencial de la población prevista en las Normas Subsidiarias en vigor desde 1986. Así, de los entre 52.752 y 54.105 habitantes de la normativa actual se pasa a 45.609. En concreto, en las zonas en las que, con el nuevo planeamiento transitorio, será posible edificar de forma directa se proyectan un total de 31.923 habitantes, y el resto (13.686) se corresponden con las áreas en las que, previamente, la Administración deberá emitir un informe favorable sobre la suficiencia de agua. De los 31.923 habitantes apuntados, 2.970 se ubican en nuevas unidades de actuación y 5.370 en terrenos urbanizables en los que resulta factible la autorización directa de nuevas construcciones.
Suscríbete para seguir leyendo
- Detenido en Ibiza un hombre por intentar secuestrar a una menor a la salida de un colegio
- La Ibiza Medieval 2026 ya tiene fechas
- Una monitora herida en una pelea con 28 menores implicados en el centro de Sa Coma de Ibiza
- Hartazgo en ses Figueretes por una nueva pelea multitudinaria
- Francisco Vilás, otro ibicenco atrapado en Dubái por los bombardeos de Irán: 'Nunca pensé vivir esto en primera persona
- Fallece un hombre tras caer desde un acantilado en Ibiza
- Los residentes de Ibiza podrán solicitar la tarjeta única para viajar gratis en el transporte público de Mallorca
- Atrapados en Tailandia: Juan Suárez y Jeanette van Breda, la odisea de regresar a Ibiza por la guerra en Irán
